SELLER: George S. Blumenthal
LOCATION: New York City, NY
PRICE: $35,000,000
SIZE: 6,000-ish square feet, 5-6 bedrooms, 4.5 bathrooms (plus staff room and bath)
YOUR MAMAS NOTES: Although we're now back in sunny California, warmly ensconced in our colorful cottage in the Hollywood Hills, Your Mama still has The Big Apple on the brain. After all, it was only yesterday Your Mama and The Chicken ate eggs with avocados at Coffee Shop on Union Square, hashed out Sanja Iveković's soo-blime Sweet Violence show at MOMA, and cruised the naughty knock-off vendors on Canal Street. So, rather than yammer on today about a bloated mock-Med (mc)mansion in Calabasas owned by a b-grade television star we've never heard of we thought we'd toss up a little uptown floor plan porn in the form of a natty and nabobish full-floor co-operative residence on Manhattan's Fifth Avenue recently hoisted on the (open) market with an asking price of $35,000,000.
An admittedly incomplete and unscientific review of available property records and various other documentation accessible on the interweb (i.e. voting records) indicates the monumental mansion-sized apartment is currently owned by George S. Blumenthal, a globally-engaged businessman and filthy rich pioneer in the mobile/cellular communications industry.
We weren't able to suss out when Mister (and Missus) Blumenthal acquired the colossal co-operative apartment or how much moolah they paid for the place, but listing information (and etc.) reveals the grandly scaled residence sits on the 9th floor of a dignified-looking limestone-sheathed, neo-Italian Renaissance style structure on the corner of Fifth Avenue and East 84th Street. The building, with a four story rusticated limestone base, was built in 1925 and designed by much lauded and applauded N.Y.C. luxury apartment house architect J.E.R. Carpenter.
The 13-story building has but 16 (or so) large and lavish apartments—some of them duplexes—and, natch, offers residents white glove services that include full time doormen, an elevator operator—the very rich prefer not to have to push buttons on their own, it seems—a fitness room, communal laundry facility, and multi-million dollar city and park views over the Metropolitan Museum of Art. For the prime location and pampering services Mister (and Missus) Blumenthal pay, as per listing information, a pocketbook punishing $16,689 per month in maintenance and co-operative fees. A few quick flicks of Your Mama's bejeweled abacus shows that amounts to an ungodly $200,268 per year, not counting holiday tips for the staff, housekeeping services, and any applicable mortgage payments. Yes puppies, unlike many of the most expensive and exclusive buildings on the Upper East Side, 1030 Fifth does permit up to 30% financing. Also unlike some of the "better" and/or more—ahem—restrictive buildings on Fifth Avenue, 1030 Fifth allows Showbiz types and those whose vast fortunes were only recently acquired to take up residence in the building. More on that later.
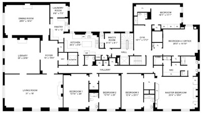
Listing information does not indicate the square footage—we guesstimate it weighs in at around 6,000 square feet—and shows the palatial pad has 6 bedrooms and 6 bathrooms. A quick parse of the floor plan included with marketing materials shows the apartment's current configuration, by our count, includes 6 bedrooms—one labeled as a bedroom/office and another accessible only by passing awkwardly through the home gym space—and just 4.5 bathrooms plus an addition staff bedroom and (windowed) bathroom tucked discreetly behind the kitchen off the service entrance. A second 9x12-foot staff bedroom on the building's second floor is included with the sale. It's not clear if the second floor staff room includes a private pooper but it certainly should since it's downright sadistic to make a live-in domestic ride the service elevator every time s/he needs to shower, shave and/or use the damn terlit.
The day-core is undoubtedly of the highest caliber and quality if a bit fussy-frou-frou for our own far less traditional taste in furniture and artwork. However, the apartment itself, with its sumptuously scaled rooms, high (if not exactly soaring) 10-foot ceilings, paneled walls, and over-sized sash windows is an exquisite example of exactly the kind of somewhat rare and prodigiously pricey New York City apartment much coveted by the sorts of super rich folks with the desire, chutzpah, and financial resources to pay more than thirty million clams for an austerity-free apartment with direct Central Park views but without a single square foot of outdoor space.
A private vestibule connects the elevator entrance to an ample but far from grandiose foyer off of which radiate spacious living and entertaining spaces that positively reek of charity luncheons, dividend income statements, matronly Ferragamo pumps with 2.5-inch heels, and dog-earred annual reports from multi-national corporations. A bowling alley-length hallway extends back from the foyer to the bedroom wing and the guest bathroom. We appreciate the discreet location of the powder room—certainly rich and poor alike dislike being subjected to the noise and olfactory assault of their guests' after dinner dirty business—but also lament it's a wee bit unfortunate dinner and/or drinks guests must intrude on the more private family areas in order to access the (windowless) facility.
The apartment provides a desirable 55-foot wide run along Fifth Avenue and Central Park. The baronial, 550-plus square foot corner living room, wrapped in paneling that may or may not be mahogany, stretches 31-feet long with hardwood floors, offers the first of four fireplaces and features four over-sized windows with long views down Fifth Avenue and over the very busy and tourist-flooded plaza in front of The Met. A banquet hall-sized formal dining room with fireplace, wood floors and painted paneling anchors the northwestern corner of the residence and in between there is a room labeled "library" on the floor plan, an un-paneled room with thick crown moldings, fireplace, three park facing windows and the sort of patterned wall-to-wall carpeting one might safely expect to find in a swank suite at the Waldorf Astoria Hotel. Perhaps they are just out of the photograph's frame, but the single listing image of the "library" curiously does not show a single book or bookshelf.
As in many ambitiously-scaled New York City apartments designed with frequent entertaining in mind, the formal dining room links to the kitchen through a large (windowed) butler's pantry for prepping food, storing linens and hand-washing Baccarat water goblets. There's a surprisingly sizable laundry room to one side of the butler's pantry and a narrow but quite long, double-windowed eat-in kitchen on the other that provides a private chef with a large center work island and—as per the listing—a full complement of top grade appliances.
Depending on how one counts and/or utilizes the bedrooms that open off the 60-plus foot long L-shaped corridor that runs spine-like through the center of the apartment, there are six possible bedrooms: two that share a Jack and Jill bathroom; one guest suite with private bathroom; two more large bedrooms that share a hall bath with the home gym; the master suite with extensive built-in cabinetry and closets, a closet-lined dressing hall and two-window bathroom with twin sinks and separate cubby for the toidy.
As Your Mama mentioned earlier in our diatribe, 1030 Fifth Avenue encompasses only 16 (or so) regal residence, many owned by high-powered Wall Street wizards, newly minted hedge fund gajillionaires, and even a few titans from the Big Bizness of Show.
Christine Wassterstein, the one-time wife of big time boo-teek banker Bruce Wasserstein, sold her full floor spread on the 11th floor in early December 2008 after just a week or so on the market with an asking price of $34,000,000. Property records and online data bases show the buyer, Prakash Melwani, an upper level executive at Wall Street's asset management and financial services juggernaut Blackstone Group, forked over $27,500,000 for the 5 bedroom and 6.5 bathroom apartment that came with elephantine monthly co-operative fees of $13,441.
About a week prior to Mister Melwani's 11th floor acquisition, the full-floor spread on the 10th floor was sold by Canadian investment banker Richard "Dick" Schmeelk for $32,270,000 to sick rich hedge hog John Griffon and his wife Amy, the progeny of a Texas businessman whose wealth derives from low brow but necessary businesses such as convenience stores, car washes, and lube and oil stations.
In July 2008 lady hedge hog Karen Fleiss and her orthopedic surgeon hubby David pushed their titanic duplex at 1030 Fifth Avenue on the market with a staggering $47,500,000 price tag. Miz Fleiss told the New York Observer back than the apartment has been purchased "for 'around $2million' in the '80s." The Fleiss's 20-plus room duplex didn't attract a buyer at the opening price—or perhaps no one who could pass muster with the co-op's board—and by early 2009 the posh pad's price had plummeted to $34,500,000. Eventually each of the two floors of was offered separately at $15,000,000 and $19,900,000 apiece and in early 2010 Mister and Missus Fleiss finally sold the lower portion of their titanic two floor apartment for $8,898,000 to money man Richard Duke Buchan III and his wife Hannah.
Way back in September 2007 Academy Award winning super-producer Wendy Finerman and her second husband David Peterson dropped $10,362,500 for a 12-room duplex with 5 bedrooms and 5.5 bathrooms and the penthouse pad, once owned by Robert Redford, is now owned by long-time broadcast journalist Diane Sawyer and her 4-times married Oscar-winning husband director Mike Nichols (The Graduate, The Birdcage, Silkwood, and our personal favorite movie of all time Who's Afraid of Virginia Woolf). The high-powered couple reportedly paid around $10,000,000 for their penthouse digs back in 2001.
Apropos of nothing relevant to Mister (and Misssus) Blumenthal's apartment at 1030 Fifth Avenue, in 1976, Mister Nichols, then married to his third wife, writer Annabel Davis-Goff, sold a 6,500 square foot four-floor apartment with 2,500 square feet of terraces at the venerable Beresford building on Central Park West. The quadruplex is now owned by Cosmopolitan magazine's long ago ousted but none-the-less iconic mother hen and grande dame Helen Gurley Brown.
interior listing photos: Warburg Realty
exterior photo (top left): Christopher Bride for Property Shark
LOCATION: New York City, NY
PRICE: $35,000,000
SIZE: 6,000-ish square feet, 5-6 bedrooms, 4.5 bathrooms (plus staff room and bath)
YOUR MAMAS NOTES: Although we're now back in sunny California, warmly ensconced in our colorful cottage in the Hollywood Hills, Your Mama still has The Big Apple on the brain. After all, it was only yesterday Your Mama and The Chicken ate eggs with avocados at Coffee Shop on Union Square, hashed out Sanja Iveković's soo-blime Sweet Violence show at MOMA, and cruised the naughty knock-off vendors on Canal Street. So, rather than yammer on today about a bloated mock-Med (mc)mansion in Calabasas owned by a b-grade television star we've never heard of we thought we'd toss up a little uptown floor plan porn in the form of a natty and nabobish full-floor co-operative residence on Manhattan's Fifth Avenue recently hoisted on the (open) market with an asking price of $35,000,000.
An admittedly incomplete and unscientific review of available property records and various other documentation accessible on the interweb (i.e. voting records) indicates the monumental mansion-sized apartment is currently owned by George S. Blumenthal, a globally-engaged businessman and filthy rich pioneer in the mobile/cellular communications industry.
We weren't able to suss out when Mister (and Missus) Blumenthal acquired the colossal co-operative apartment or how much moolah they paid for the place, but listing information (and etc.) reveals the grandly scaled residence sits on the 9th floor of a dignified-looking limestone-sheathed, neo-Italian Renaissance style structure on the corner of Fifth Avenue and East 84th Street. The building, with a four story rusticated limestone base, was built in 1925 and designed by much lauded and applauded N.Y.C. luxury apartment house architect J.E.R. Carpenter.
The 13-story building has but 16 (or so) large and lavish apartments—some of them duplexes—and, natch, offers residents white glove services that include full time doormen, an elevator operator—the very rich prefer not to have to push buttons on their own, it seems—a fitness room, communal laundry facility, and multi-million dollar city and park views over the Metropolitan Museum of Art. For the prime location and pampering services Mister (and Missus) Blumenthal pay, as per listing information, a pocketbook punishing $16,689 per month in maintenance and co-operative fees. A few quick flicks of Your Mama's bejeweled abacus shows that amounts to an ungodly $200,268 per year, not counting holiday tips for the staff, housekeeping services, and any applicable mortgage payments. Yes puppies, unlike many of the most expensive and exclusive buildings on the Upper East Side, 1030 Fifth does permit up to 30% financing. Also unlike some of the "better" and/or more—ahem—restrictive buildings on Fifth Avenue, 1030 Fifth allows Showbiz types and those whose vast fortunes were only recently acquired to take up residence in the building. More on that later.
Listing information does not indicate the square footage—we guesstimate it weighs in at around 6,000 square feet—and shows the palatial pad has 6 bedrooms and 6 bathrooms. A quick parse of the floor plan included with marketing materials shows the apartment's current configuration, by our count, includes 6 bedrooms—one labeled as a bedroom/office and another accessible only by passing awkwardly through the home gym space—and just 4.5 bathrooms plus an addition staff bedroom and (windowed) bathroom tucked discreetly behind the kitchen off the service entrance. A second 9x12-foot staff bedroom on the building's second floor is included with the sale. It's not clear if the second floor staff room includes a private pooper but it certainly should since it's downright sadistic to make a live-in domestic ride the service elevator every time s/he needs to shower, shave and/or use the damn terlit.
The day-core is undoubtedly of the highest caliber and quality if a bit fussy-frou-frou for our own far less traditional taste in furniture and artwork. However, the apartment itself, with its sumptuously scaled rooms, high (if not exactly soaring) 10-foot ceilings, paneled walls, and over-sized sash windows is an exquisite example of exactly the kind of somewhat rare and prodigiously pricey New York City apartment much coveted by the sorts of super rich folks with the desire, chutzpah, and financial resources to pay more than thirty million clams for an austerity-free apartment with direct Central Park views but without a single square foot of outdoor space.
A private vestibule connects the elevator entrance to an ample but far from grandiose foyer off of which radiate spacious living and entertaining spaces that positively reek of charity luncheons, dividend income statements, matronly Ferragamo pumps with 2.5-inch heels, and dog-earred annual reports from multi-national corporations. A bowling alley-length hallway extends back from the foyer to the bedroom wing and the guest bathroom. We appreciate the discreet location of the powder room—certainly rich and poor alike dislike being subjected to the noise and olfactory assault of their guests' after dinner dirty business—but also lament it's a wee bit unfortunate dinner and/or drinks guests must intrude on the more private family areas in order to access the (windowless) facility.
The apartment provides a desirable 55-foot wide run along Fifth Avenue and Central Park. The baronial, 550-plus square foot corner living room, wrapped in paneling that may or may not be mahogany, stretches 31-feet long with hardwood floors, offers the first of four fireplaces and features four over-sized windows with long views down Fifth Avenue and over the very busy and tourist-flooded plaza in front of The Met. A banquet hall-sized formal dining room with fireplace, wood floors and painted paneling anchors the northwestern corner of the residence and in between there is a room labeled "library" on the floor plan, an un-paneled room with thick crown moldings, fireplace, three park facing windows and the sort of patterned wall-to-wall carpeting one might safely expect to find in a swank suite at the Waldorf Astoria Hotel. Perhaps they are just out of the photograph's frame, but the single listing image of the "library" curiously does not show a single book or bookshelf.
As in many ambitiously-scaled New York City apartments designed with frequent entertaining in mind, the formal dining room links to the kitchen through a large (windowed) butler's pantry for prepping food, storing linens and hand-washing Baccarat water goblets. There's a surprisingly sizable laundry room to one side of the butler's pantry and a narrow but quite long, double-windowed eat-in kitchen on the other that provides a private chef with a large center work island and—as per the listing—a full complement of top grade appliances.
Depending on how one counts and/or utilizes the bedrooms that open off the 60-plus foot long L-shaped corridor that runs spine-like through the center of the apartment, there are six possible bedrooms: two that share a Jack and Jill bathroom; one guest suite with private bathroom; two more large bedrooms that share a hall bath with the home gym; the master suite with extensive built-in cabinetry and closets, a closet-lined dressing hall and two-window bathroom with twin sinks and separate cubby for the toidy.
As Your Mama mentioned earlier in our diatribe, 1030 Fifth Avenue encompasses only 16 (or so) regal residence, many owned by high-powered Wall Street wizards, newly minted hedge fund gajillionaires, and even a few titans from the Big Bizness of Show.
Christine Wassterstein, the one-time wife of big time boo-teek banker Bruce Wasserstein, sold her full floor spread on the 11th floor in early December 2008 after just a week or so on the market with an asking price of $34,000,000. Property records and online data bases show the buyer, Prakash Melwani, an upper level executive at Wall Street's asset management and financial services juggernaut Blackstone Group, forked over $27,500,000 for the 5 bedroom and 6.5 bathroom apartment that came with elephantine monthly co-operative fees of $13,441.
About a week prior to Mister Melwani's 11th floor acquisition, the full-floor spread on the 10th floor was sold by Canadian investment banker Richard "Dick" Schmeelk for $32,270,000 to sick rich hedge hog John Griffon and his wife Amy, the progeny of a Texas businessman whose wealth derives from low brow but necessary businesses such as convenience stores, car washes, and lube and oil stations.
In July 2008 lady hedge hog Karen Fleiss and her orthopedic surgeon hubby David pushed their titanic duplex at 1030 Fifth Avenue on the market with a staggering $47,500,000 price tag. Miz Fleiss told the New York Observer back than the apartment has been purchased "for 'around $2million' in the '80s." The Fleiss's 20-plus room duplex didn't attract a buyer at the opening price—or perhaps no one who could pass muster with the co-op's board—and by early 2009 the posh pad's price had plummeted to $34,500,000. Eventually each of the two floors of was offered separately at $15,000,000 and $19,900,000 apiece and in early 2010 Mister and Missus Fleiss finally sold the lower portion of their titanic two floor apartment for $8,898,000 to money man Richard Duke Buchan III and his wife Hannah.
Way back in September 2007 Academy Award winning super-producer Wendy Finerman and her second husband David Peterson dropped $10,362,500 for a 12-room duplex with 5 bedrooms and 5.5 bathrooms and the penthouse pad, once owned by Robert Redford, is now owned by long-time broadcast journalist Diane Sawyer and her 4-times married Oscar-winning husband director Mike Nichols (The Graduate, The Birdcage, Silkwood, and our personal favorite movie of all time Who's Afraid of Virginia Woolf). The high-powered couple reportedly paid around $10,000,000 for their penthouse digs back in 2001.
Apropos of nothing relevant to Mister (and Misssus) Blumenthal's apartment at 1030 Fifth Avenue, in 1976, Mister Nichols, then married to his third wife, writer Annabel Davis-Goff, sold a 6,500 square foot four-floor apartment with 2,500 square feet of terraces at the venerable Beresford building on Central Park West. The quadruplex is now owned by Cosmopolitan magazine's long ago ousted but none-the-less iconic mother hen and grande dame Helen Gurley Brown.
interior listing photos: Warburg Realty
exterior photo (top left): Christopher Bride for Property Shark
RSS Feed
Twitter
11:23 AM
Unknown


0 comments:
Post a Comment